[급매] 용인 반도체클러스터 & 반도체밸리 인접 타운하우스
페이지 정보
본문
| 등록번호 | 1700986168 |
|---|---|
| 거래유형 | 매매 |
| 면적 | 203.3㎡ |
| 가격 | 13억9천 (할인중) |
| 지역 | 경기도 용인시 기흥구 지삼로17번길 17-123 |
| 연락처 | 010-9440-9317 |
| 위치 |
『 용인특례시 스마트도시 국토부 최종 승인 』
https://news.mt.co.kr/mtview.php?no=2023102013500734314
서울 강남권이나 판교 등
주요 업무지역으로 접근성 용이
용인시 기흥구
반도체클러스터, 플랫폼시티,
테크노밸리, 바이오밸리 인접
단지형 하이엔드 타운하우스
1. 매매 금액
- 분양가 : 1,516,539,000원
- 매도가 : 1,390,000,000원 (가격 네고 가능)
- 대출가능금액 : 분양가 기준 40%대출 가능
- 입주 : 2024년 1월 이후 협의 입주 가능 (입주 일정 조율)
- 내부 인테리어 변경 가능(한샘) : 주방 가구(색상/재질) , 벽지, 바닥재
2. 전용 면적
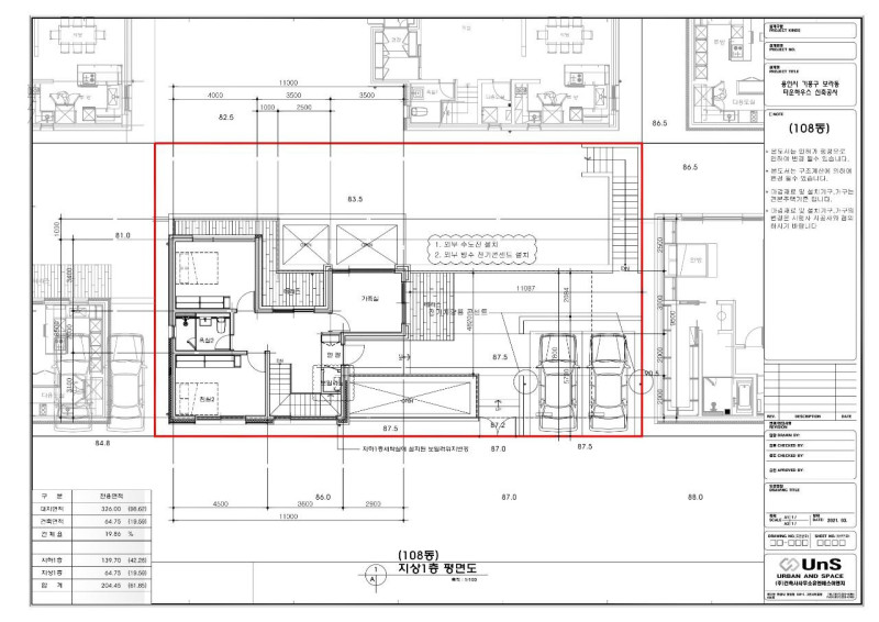
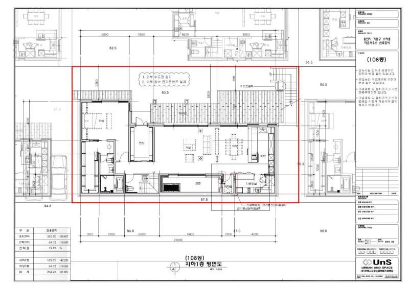
- 건물 : 204㎡(60평)
- 대지 : 406㎡(120평)
3. 방갯수 : 방4개 / 화장실3개 / 드레스룸1개
- 1층 : 거실,큰방(침실+파우더룸),드레스룸,화장실2,욕실,주방,다용도실
- 2층 : 방3개, 화장실(샤워부스),테라스,주차장(2대)
- 가전(LG전자): 시스템에어컨,세탁기,건조기,스타일러,냉장고,김치냉장고,식기세척기,전기오븐,정수기
- 가구: 메인주방(한샘 키친바흐) / 기타가구 (한샘), 인덕션
- 주차장 : 태양광 3KW(지붕), 차고 오버헤드(입구) 무상시공, 주차2
- 보안/시스템 : IOT 보안&전열 시스템
4. 총 75세대 , 그린생활시설 (1동)
5. 타운하우스 주소
경기도 용인시 기흥구 지삼로17번길 17-123
개인 사정으로 분양가 대비 대폭 할인해
급매로 내 놓습니다.
언제든 연락주세요
010-9440-93일7
공인중개사무소 중개 및 연락환영
(복비 대폭 상향 지급 - 문의주세요)
[ 교 통 ] --------------------------------------------------
★ 용인 반도체클러스터, 바이오밸리,테크노밸리,플랫폼시티 인접
♧ 경부고속도로 수원신갈IC 2km /용인서울고속도로 흥덕IC 4km
♧ 버스정류장 용인시내와 영통, 죽전노선
♧ 1km 광역버스정류장 강남, 사당, 광화문 노선
♧ 분당선 상갈역 1.7km (차량 7분, 도보 20분)
★ 24년 기흥 - 동탄 - 오산 분당선 연장 예정
★ 24년 4월 GTX-A 개통(용인역)
[ 교 육 ] ---------------------------------------------------
♣ 반경 500m 이내 나곡초, 나곡중
♣ 반경 2km 이내 보라초, 나산초, 상갈중, 보라중, 보라고
♣ 1km 거리 강남대학교,경희대,용인대,아주대
[ 기 타 ] --------------------------------------
★ 대형마트 : 이마트, 노브랜드, 이케아, 프리미엄아울렛, 코스트코 등
★ 종합병원 : 동백연세세브란스, 아주대병원 등
♠ 타운하우스 내부 인테리어/가전 상세 영상 ♠
※ 매물상세정보(상세 사진 및 & 영상) : https://blog.naver.com/huunji/223156837003
※ 타운하우스 공식 사이트 : http://www.courtyardnorthhill.com/
■ 샘플하우스 사진
![]()
![]()
![]()
![]()
![]()
![]()
![]()
![]()
![]()
![]()
![]()

![]()
![]()

![]()
![]()
![]()
![]()
![]()
![]()
![]()
![]()
![]()
![]()
![]()
![]()
![]()
도면
![]()
![]()
관련링크
- 이전글용인 반도체클러스터 타운하우스 - 5년 동안 매입원가 지급보증 24.05.14
