본문 바로가기

대전광역시 중구 보문로20번길 79 .4층 . 11가구. 다가구주택. 11가구 2018년식 // (49%) 591,347,000 > 부동산

본문 바로가기

쇼핑몰 검색

회원로그인

회원가입

오늘 본 상품 0

없음

농장,축사,과수원 목록  글쓰기  다음

대전광역시 중구 보문로20번길 79 .4층 . 11가구. 다가구주택. 11가구 2018년식 // (49%) 591…

페이지 정보

profile_image
작성자 좋은일이
댓글 댓글 0건   조회Hit 13,722회   작성일Date 25-01-19 09:45

본문

등록번호 1737247235
거래유형 다가구주택
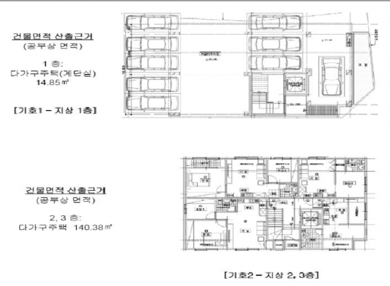
면적 290.9㎡
가격 (49%) 591,347,000
지역 대전 중구
연락처 0
위치 대전광역시 중구 보문로20번길 79

ada0bb9d525c559948e58c5a34ee2504cd555404.png

cfbdfeba8e4ebf5c4c043150eb35fd531e90ffde.png

bbf42dbe05f99015e063c5b4d47a02e26f2a2fe8.png

53496980a5f5ce5fdb4976d85b12e8f725615eba.png

1b7636933895df7ac525765e0f9795eee1489436.png

ada0bb9d525c559948e58c5a34ee2504cd555404.png

96afb3e68ec674ee9722a9370cd973c2cc2f937c.png

51fe906b70d5e255164187551295db2817ca52ba.png

9b4d946ffdaf5d8d23c1e8a20e28769bc4be951f.png

e8c84d9bf5fa32c7c3c0736f2e529652672a901b.png

c13a10f8e03cb1dc1e188d23b1791ea4f3308df3.jpg


추천0
Total 5건 24 P
  •   글쓰기 
  •  
부동산

□ 월세   □ 전세   □ 매매

목록 
  • 게시물이 없습니다.

검색