본문 바로가기

경기도 파주시 와동동 1630-4, 4층상가주택, // (70%) 911,343,000 > 부동산

본문 바로가기

쇼핑몰 검색

회원로그인

회원가입

오늘 본 상품 0

없음

농장,축사,과수원 목록  글쓰기  이전  다음

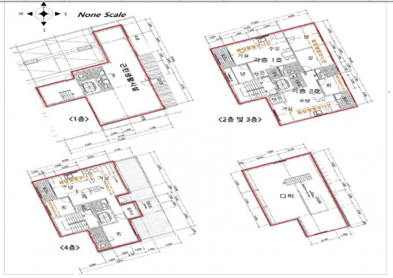
경기도 파주시 와동동 1630-4, 4층상가주택, // (70%) 911,343,000

페이지 정보

profile_image
작성자 좋은일이
댓글 댓글 0건   조회Hit 28,315회   작성일Date 25-02-03 18:32

본문

등록번호 1738575007
거래유형 상가주택
면적 234.7㎡
가격 (70%) 911,343,000
지역 경기 파주시
연락처 0
위치 경기도 파주시 와동동

1f21d036996a9d80e9bb808336df6b18844057db.png

a529c36f1129bf3d8b204ce5cad1d699909f9504.png

49b18fefd276e93710312a4c765dd1e5fc6e8a7e.png

3d37717ccf78790cb953025d259b941b898301bd.png

925e4d3d2d6aed168dbff344fa78695c43630b27.png

1f21d036996a9d80e9bb808336df6b18844057db.png

4683e2cb2765274a0da4000d6e89b60ab4a10af1.png

e176b613d807845ca8ecd65311622b4bc1545968.png

5169e4e003be9f64bf994e19c2f55dc693f85d3b.png

bbde65c210810e3fdbdfd3cad5a94ed8711add26.jpg


추천0
Total 23건 1 P
  •   글쓰기 
  •  
농장,축사,과수원
       (경기, 파주시)

□ 월세   □ 전세   □ 매매

목록  다음

검색