본문 바로가기

경기 양평군 용문면 조현리 144-33 1동 / (70%) 198,384,000 > 부동산

본문 바로가기

쇼핑몰 검색

회원로그인

회원가입

오늘 본 상품 0

없음

농장,축사,과수원 목록  글쓰기  이전  다음

경기 양평군 용문면 조현리 144-33 1동 / (70%) 198,384,000

페이지 정보

profile_image
작성자 좋은일이
댓글 댓글 0건   조회Hit 23,260회   작성일Date 25-02-06 16:12

본문

등록번호 1738825790
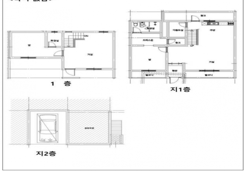
거래유형 단독주택
면적 231.4㎡
가격 (70%) 198,384,000
지역 경기 양평군
연락처 0
위치 경기 양평군 용문면 조현리

e4ad29b728eef283c0418057656f2c4571370db8.png

b7089522aa801de71f67eaa40b9f0266e799a137.png

05c1073c5ad1a73984d662184d59932af1503b7d.png

ac7cc00d9e072e8ec0aff006f0c0bf70a6d89318.png

e4ad29b728eef283c0418057656f2c4571370db8.png

55ff126e9e988b4422de6f94e66ba1acdf32adaf.png

04fd830c56b0504015db06f4b3e3313a8c3449b3.png

1085a1507a4df2ee2bd6f3fb3a0a6e2c0b11586e.png

b0ed17239dd8f9e8a478f8b95c558eeb91b4623e.jpg


추천0
Total 30건 1 P
  •   글쓰기 
  •  
농장,축사,과수원
       (경기, 양평군)

□ 월세   □ 전세   □ 매매

목록  다음

검색