인천광역시 남동구 구월동 1291-13,4층상가주택. // (49%) 279,962,000
페이지 정보
본문
| 등록번호 | 1739151483 |
|---|---|
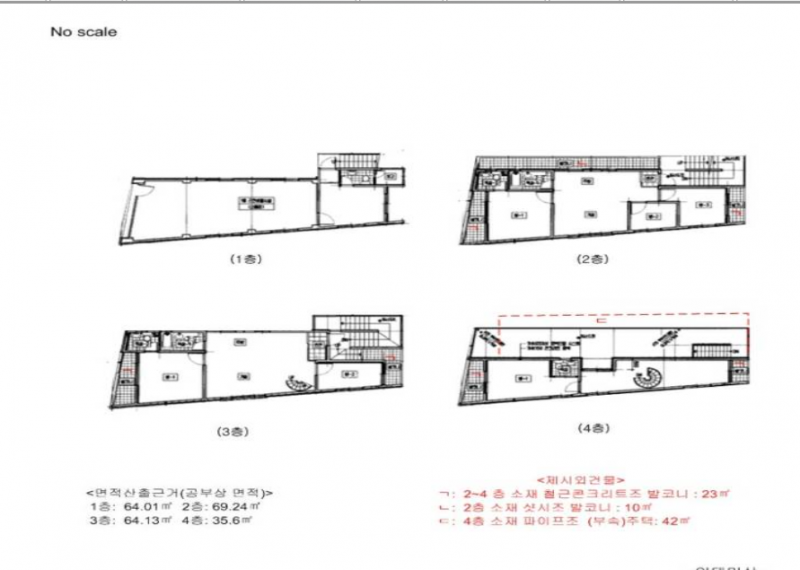
| 거래유형 | 4층상가주택 |
| 면적 | 122.3㎡ |
| 가격 | (49%) 279,962,000 |
| 지역 | 인천 남동구 |
| 연락처 | 0 |
| 위치 | 인천광역시 남동구 구월동 |
// // 외부는 20년전 건축물 이라서 노후흔적 있의나 내부는 깨끗하고 전체적의로 수리하여 보임. (토지구역의로 묶여있음의로 장기투자로 수익율이 좋아보임.)
![]()
![]()
![]()
![]()
![]()
![]()
![]()
![]()

추천0
