주말 세컨하우스 도면 좀 봐주세요
페이지 정보
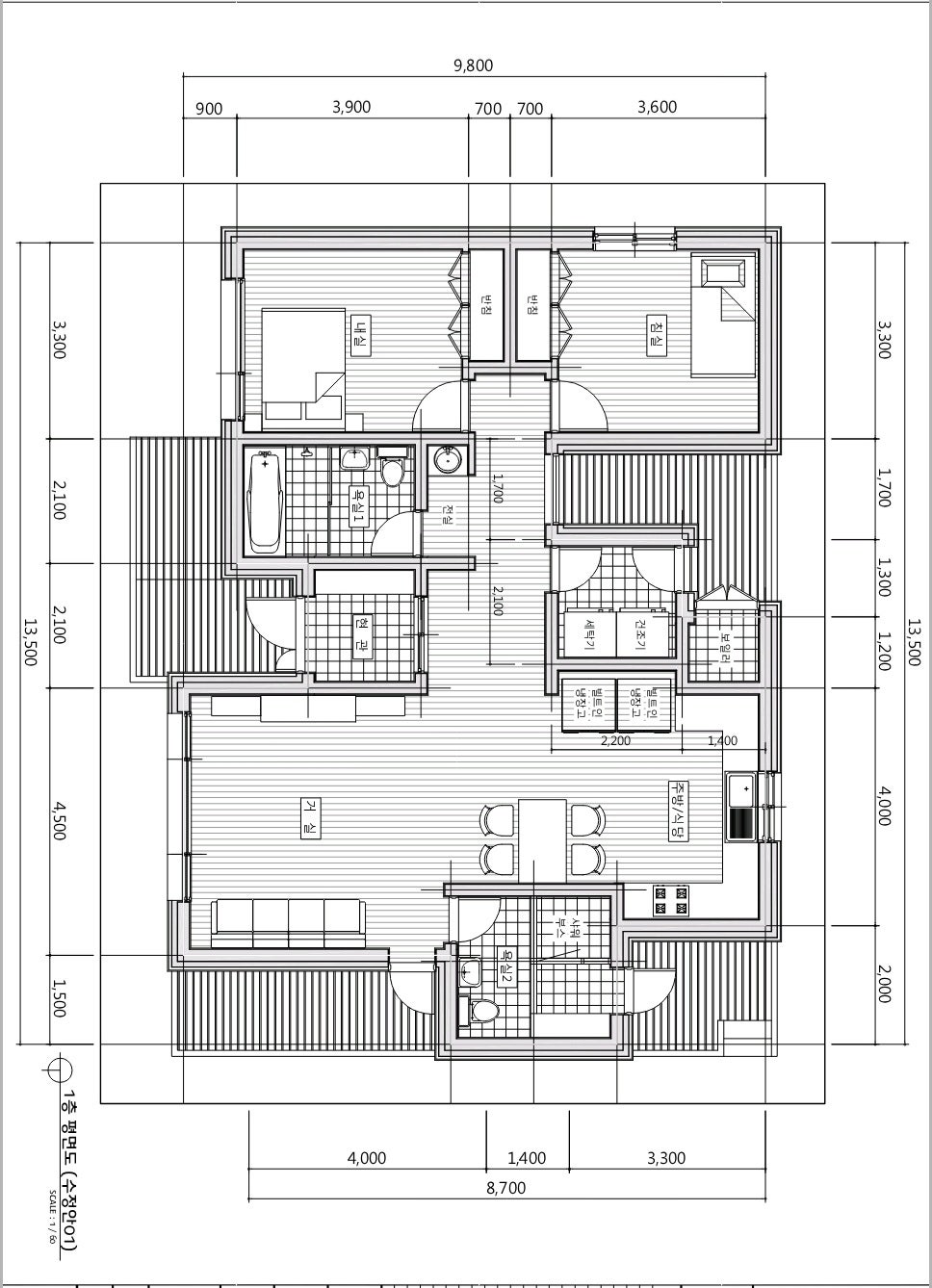
본문


전체 400평중 1/3정도는 부모님과 저희 텃밭, 1/3은 창고와 버스캠핑카 주차 및 관리, 나머지 1/3은 주택 및 마당입니다.
캠핑카 관리 겸 지인들과의 개인 캠핑장 용도로 구입한 땅이라 저희가족은 마당에서 생활하는 시간이 주를 이루고 세컨하우스는 부모님과 부모님 지인, 또는 캠핑을 하지 않는 지인들이 묵을 숙소로 계획하고 있어서 다수의 사람들이 주택 내 외에서 사용하기 편리한 조건으로 건축사무소에 아래처럼 몇가지 조건의 요청을 드렸습니다.
1. 거실과 주방이 연결된 구조
2. 방의 크기는 아파트 작은방 정도로 2개(방의 크기는 차이 없어도 됨.)
3. 드레스룸, 파우더룸은 필요 없고, 방 1개에 이불장 용도의 붙박이장만 있음 됨.
4. 안방(방 내) 화장실 말고 공용 화장실 2개로 하고 그 중 1개는 외부에서도 출입가능한 위치
5. 마당과 연결된 곳에 거실 위치, 거실이 햇빛을 많이 받을 수 있도록 창 위치, 거실 창이 마당과 연결 및 통행 가능하도록 창을 위치
이 조건으로 받은 설계도면인데 무언가 시원하지 않아서 선배님들의 조언을 구합니다.
땅의 위치상 거의 정남향으로 햇빛을 받을 수 있는 상황인데 거실 채광 부분에서 괜찮을지 고민스럽기도 하고요ㅎ
실제로 살아보지 않았고, 집 설계도 처음이라 이런 구조와 위치로 설계했을때 불편한 점이나 아쉬운 점, 혹은 설계시에 반영하면 좋은 것들
사소한 것이라도 조언주시면 감사하겠습니다...!
- 이전글부모님 시골집 마당을 어떻게 정리할까요 26.02.23
- 다음글서리태로 만든 두부입니다 고소하네요 26.02.20
댓글목록

김미김미님의 댓글
김미김미 작성일 Date욕실은 2개 모두 공용이네요... 오히려 마스터베드룸에 부속 욕실로 계획하심이 나을 듯하고요. 후면부 긴 데트공간은 효용성 별로 없을것 같네요. 아울러, 욕실은 전면부에 배치를 잘 하지 않습니다.